经营规模:项目共设置养老床位 730 张
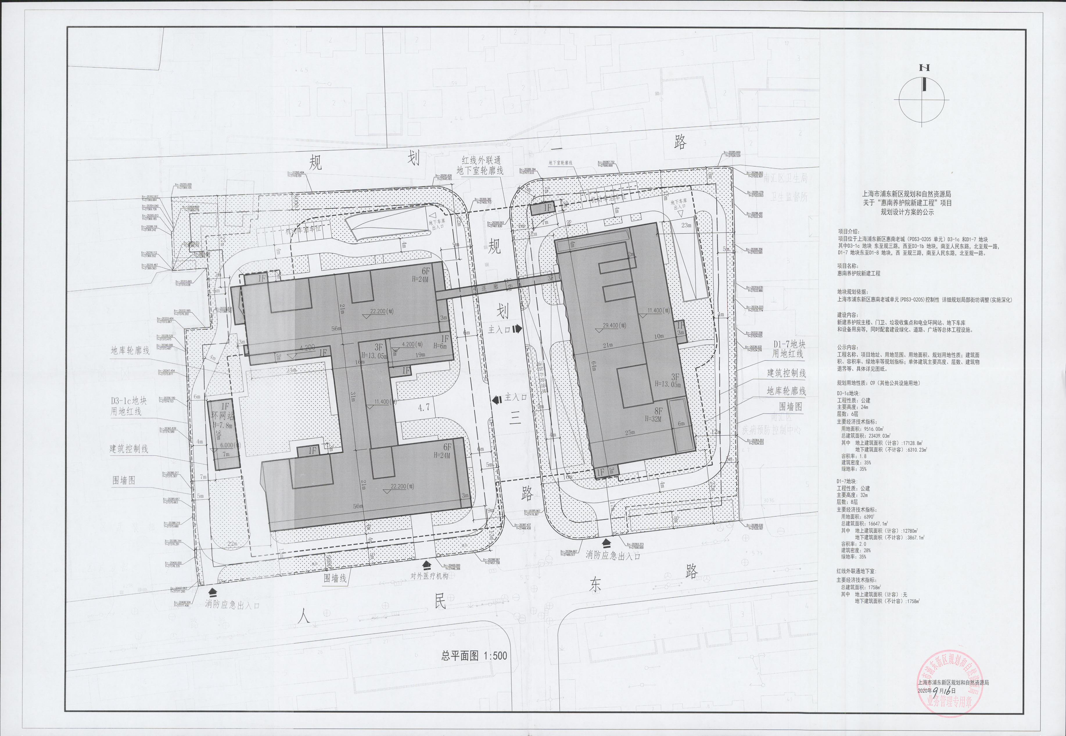
浦东新区惠南老城 D3-1c和 D1-7 地块,总占地面积 15906 平方米;D1-7 地块东至 D1-8 地块,西至规三路,南至人民东路,北至规一路,占地面积 6390 平方米。
通过配套符合老年人体工学的家具设施及各种定制化服务、个性化营养膳食等方式,打造传统与现代相融合的养老生活理念,以丰富的娱乐生活与贴心的晚年生活。
主要为中高端老年群体提供高品质的医养结合养老服务。始终秉持“老人的需求,就是我们的追求”的经营理念,为住院长者提供优质、高效、专业、安全的老年服务。
从婴幼到老人,全方位覆盖人群
15年养老服务运营经验、独居慧眼的发起人;全方位的综合房地产和医疗保健公司为战略投资者
与房地产合作伙伴合作,利用其房产与设施并进行定制;与地方政府机构合作积极开展共建民营项目;收购地块/资产并从头构建
自持不动产,自行管理老年医养护理业务及设施;整租房地产物业并自行管理老年医养护理业务及设施;代表第三方管理
自2002年以来,在全国过开设20多家养老服务机构,实际客户占客服务客户人数比例均保持在90%以上;放眼成为长三角区域的最大养老护理服务运营商
"三分治疗,七分护理"。正确的护理有助于病情的减轻、身体的恢复至痊愈;综合评估病人的服务需求,与专业医生一起共同订制术后或疾病护理方案,与患者和家人共同研究每一项护理任务,帮助患者在出院后继续得到专业、全面的护理,促进疾病康复以避免因护理不当导致重复入院。
与三甲医院合作专家会诊及绿色转诊通道等服务。
人寿堂集团副高以上职称医院团队开设门诊及住院服务,医保定点。
以康复护理为重点提供多元化年老康复诊疗服务。
配套认知症专区“记忆家园。”
为患者提供全面的身心照护与支持。其宗旨是减少患者的痛苦,增加患者的舒适,提高其生命质量,维护临终患 者的尊严。
体检:入院体检、每年一次全面体检 用药:按规定用药,用药后观察老人身体状况 门诊:提供问诊、检查、开药、治疗服务 查房:24小时值班,确保突发状况的应对。
中医养生+康复治疗 中医养生:为老人调理身体、康复运动(运动疗法、作业疗法、言语疗法、物理因子疗法等)方式为延长老人自理状态,提供有效的保障。
为认知功能下降、有精神状况和行为障碍、日常生活能力逐渐下降的失智长者提供兼顾生活照料及医疗护理的整合照护服务,实现一站式生活健康解决方案。
集医疗、养老、康复、护理、娱乐于一体的综合性旗舰养老项目。
落实全区养老床位建设任务和深化养老服务“医养结合”。
上海市浦东新区惠南老城(PDS3-0205 单元)D3-1c和 D1-7 地块,总占地面积 15906 平方米,其中 D3-1c 地块东至规三路,西至 D3-1b 地块,南至人民东路,北至规一路,占地面积9516 平方米;D1-7 地块东至 D1-8 地块,西至规三路,南至人民东路,北至规一路,占地面积 6390 平方米。

项目共设置养老床位 730 张,主要建设内容为:

项目总投资 35239.24 万元,其中:建安费用 27232.54万元、其他费用 3763.05 万元、预备费 2479.65 万元、前期工程费 480 万元、土地前期费 1284 万元。所需资金由新区财力安排。
结合运营要求,完善功能配置;做好与分隔地块规划道路建设方案和实施计划的统筹衔接,深化施工组织方案和工期安排,做好社会稳定风险防范,避免对周边建筑产生影响。
本项目建设工期为 36 个月。
| 序号 | 项目名称 | 金额(万元) |
|---|---|---|
| 一 建安费用 | 27232.54 | |
| 1 西区(D3-1c | 地块) | 14836.81 |
| 2 东区(D1-7 | 地块) | 11006.97 |
| 3 | 环网站 | 54.00 |
| 4 | 养老院专项系统 | 510.02 |
| 5 | 室外总体工程 | 824.74 |
| 二 其他费用 | 3763.05 | |
| 1 | 前期工作费 | 272.33 |
| 2 | 设计费 | 688.35 |
| 3 | 施工图预算编制费 | 68.83 |
| 4 | 竣工图编制费 | 55.07 |
| 5 | 勘察费 | 217.86 |
| 6 | 工程监理费 | 645.45 |
| 7 | 代建单位管理费 | 481.72 |
| 8 | 市政配套费 | 768.20 |
| 9 | 场地准备及临时措施费 | 272.33 |
| 10 BIM | 费 | 292.91 |
| 三 预备费 | 2479.65 | |
| 四 前期工程费 | 480.00 | |
| 1 | 拆除费 | 330.00 |
| 2 | 清障费 | 100.00 |
| 3 | 绿化搬迁 | 50.00 |
| 五 土地前期费 | 1284.00 | |
| 合计 | 35239.24 |

| 项目名称 | 惠南养护院新建工程 | |||
| 项目总投资 | 35239.24万元 | |||
| 政府出资 | 35239.24万元 | |||
| 总体目标 | 通过新建养护院,推进全区养老床位建设,落实本市深化养老服务中“医养结合”的具体要求,打造一个生活舒适、设施配套、功能齐全的现代化新型老年养护机构,有效缓解浦东新区养老床位的供需压力,提升养老服务能力。计划底开工,2023 年竣工验收,确保施工质量达到优质工程标准,投资不超概算。 | |||
| 绩效指标 | 一级指标 | 二级指标 | 三级指标 | 指标值 |
| 产出指标 | 数量指标 | 工程规模 | 41844 平方米(建筑面积) | |
| 质量指标 | 工程验收合格率 | 一次性验收通过 | ||
| 施工安全 | 无重大施工安全事故 | |||
| 交付后正常运行情况 | 正常运行,满足设计功能 | |||
| 符合相关部门质控要求 | 符合 | |||
| 时效指标 | 建设工期 | 36个月 | ||
| 成本指标 | 投资控制 | 按批准概算控制 | ||
| 效益指标 | 社会效益指标 | 新增养老床位 | 新增730张“保基本”养老床位 | |
| 生态效益指标 | 环保措施 | 环保验收通过 | ||
| 可持续影响指标 | 提升养老服务能力 | 有效提升 | ||
| 满意度指标 | 服务对象满意度指标 | 入住老人满意度 | ≧90% | |





重度、中度、轻度失能老人及自理老人的集中居住、生活照料、康复护理、精神慰藉、文化娱乐。
上海市浦东新区惠南镇城南路88号